预售速递|蓝山湾蓝寓2#楼获预售 38-60㎡装修LOFT总价60万起将开
傻大方小编提示您本文标题是:预售速递|蓝山湾蓝寓2#楼获预售 38-60㎡装修LOFT总价60万起将开盘。来源是。
预售速递|蓝山湾蓝寓2#楼获预售 38-60㎡装修LOFT总价60万起将开盘。开盘|蓝山|预售|总价|装修|loft---
核心提示:日前,蓝山湾蓝寓95套房源获预售,许可证号为青房注字(2018)第022号,业态为公寓和商铺。其中公寓建面38-60㎡装修LOFT,现意向登记中,计划4月份开盘,总价60万起。青岛新闻网提供售楼处咨询电话:400-810-0532转168
蓝山湾蓝寓2号楼获预售 参考价格17440元/㎡可浮动0.2
4月4日,青岛网上房地产发布公示,蓝山湾蓝寓95套房源获预售,许可证号为青房注字(2018)第022号,业态为公寓和商铺。
开盘|蓝山|预售|总价|装修|loft---

青岛网上房地产公示信息截图
具体来看,本次获预售房源位于李沧区重庆中路631号2号楼,84套房源获预售,参考价格均为17440元/㎡;
另有李沧区重庆中路631号17-27总计11套房源获预售,为商铺,参考价格在30000-35000元/㎡之间;
以上房源参考价格可浮动幅度均为0.2。
采访人员致电售楼处了解到,本次获预售2号楼现已开始意向登记,预计4月份开盘,建面38-60㎡LOFT预计总价60万起,层高4.7米,一层挑空设计,相当于花一层的价格即可购得两层居住空间,且部分户型上下两层均有卫生间及额外的榻榻米室赠送,得房率高。
开盘|蓝山|预售|总价|装修|loft---

蓝山湾蓝寓2#预计4月加推
值得一提的是,蓝山湾蓝寓2号楼为5层多层带电梯,公摊23.5%是市面上同类产品乃至普通高层住宅难以企及的。在售楼处有实景样板间可前往参观、进一步了解户型格局和装修标准。
另据置业顾问介绍,项目3#楼尚有少量房源可售,建面约60㎡、70㎡LOFT,均价16000-17000元/㎡,总价60-80万左右。
开盘|蓝山|预售|总价|装修|loft---

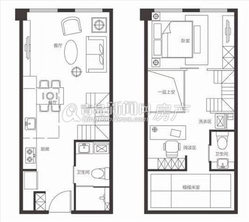
蓝山湾蓝寓建面约37-42㎡LOFT户型图(查看更多)
开盘|蓝山|预售|总价|装修|loft---

蓝山湾蓝寓建面约47㎡LOFT样板间实景(查看更多)
蓝山湾蓝寓为蓝山湾四期,凭借小面积、低总价优势,备受网友青睐。前三期住宅均已陆续交付入住,成熟大盘配套完善,社区医院、百货超市、早教中心、银行、联通营业厅等日常生活所需一应俱全,未来蓝寓业主入住即可享受成熟的社区配套条件。
开盘|蓝山|预售|总价|装修|loft---

蓝山湾社区日渐成熟
往期回顾:
青西区两盘获预售 瑜公馆装修高层将推/康大观山樾叠拼在售
青西区长青山庄获预售 110-159㎡洋房带院送地下室
>>>4.7新闻网免费看房车四线齐发:城阳均价14000元/㎡,西海岸均价15000元/㎡,海阳一线海景房首付11万起,潍坊返乡置业看房专线均价4800元/㎡,关注微信公众号“青岛看房车”,每周看房优惠信息早知道。
青岛新闻网房产提供信息:
项目地址:李沧区重庆中路597号
售楼处地址:李沧区重庆中路597号
咨询电话:400-810-0532转168
- 【暴走速递】“一起踏青去·与春天有约”飞毛腿集团2018年春季摄
- 【淄博新店】智能健身房预售告急!惊喜优惠享不停!
- 新品速递丨汤臣倍健入局功能饮料市场,中粮推出柠檬茶品,伊利出
- 【新政速递】免征车辆购置税的新能源汽车目录将实行动态管理!
- 项目速递|首期Biotalk国际医疗项目对接会在沪隆重举行!
- 预售证开闸!广州一周供应5000多套!环比升230%!成交升6成!终于爆
- 今日地产速递|深圳新房价格连续18个月下降
- 【行情速递】废纸价开始逆袭,28家纸厂最高再涨70元/吨!
- 预售证开闸!广州一周供应5000多套!环比升230%!成交升6成!
- 近期发放15张预售证 4月上海楼市将迎来开盘高峰
