海外房产投资,首选吉隆坡,全球第4佳宜居都市!
全球第4佳宜居都市!’,特意拿来分享给各位看官,如果你也觉得这篇文章不错,记得分享哦!
正文开始:
游泳池
健身房
Eaton Residences
项目优势
一、位处吉隆坡黄金三角区
1、步行 15 分钟内即达双子塔、KLCC 公园
2、毗邻巴比伦商业中心、星光大道
3、距离国际金融区 5 分钟车程
4、周边(3 公里以内)有着多所国际学校、医疗机构
5、双子塔、皇家高尔夫球场全景一览无余
二、五星级酒店设计,超五星级附属配套,精装修
1、耀眼地标设计,全落地镜面外墙(新加坡金莎酒店设计团队设计)
2、最高 90 度无敌景观
3、吉隆坡最高最长无边际空中泳池(全马独一无二泳池设计)
4、套内面积无公摊
5、全屋精装、厨卫全配,送免费停车位(根据户型免费赠送 1-4 个车位)
三、购房无资金压力,投资回报率高
1、首付 7 万起
2、第一年付 10%,实付 7%,优惠 3%
3、第二年付 10%,实付 6%,优惠 4%
4、第三年付 20%,开发商提供 2 年(24 个月)免息分期付款
5、第四年银行开始支付剩余 60%款项
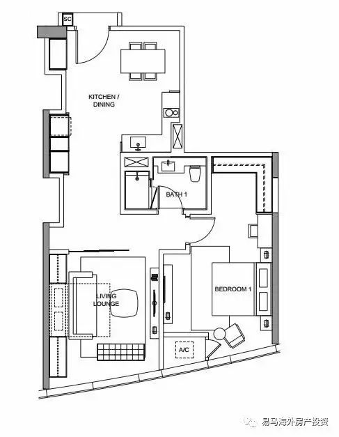
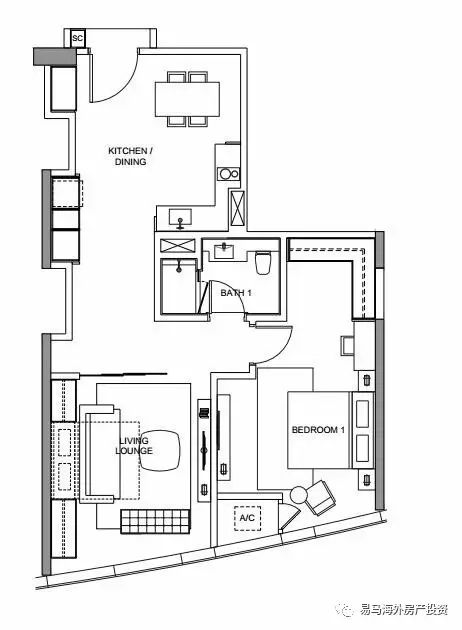
Type A4户型图
Type A4户型图
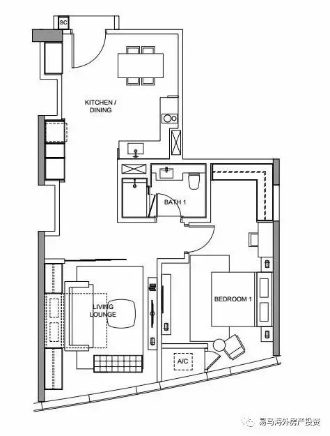
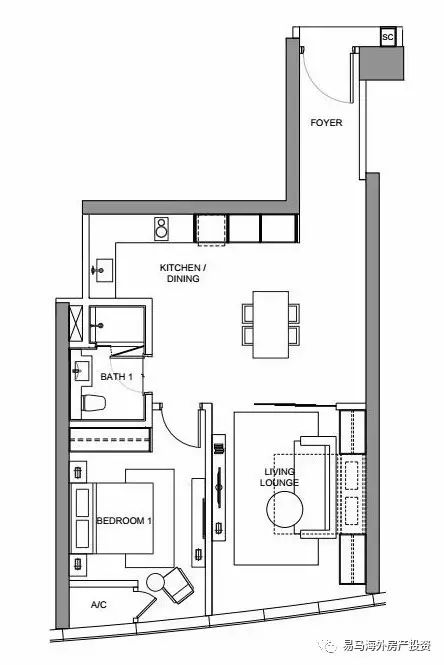
Type A5户型图
Type A5户型图
配套设施
全精装拎包入住,装修包含:
- 双人床 (折叠式沙发床)x 1
- 卧室衣柜 x 2
- 沙发 x 1
- 厨房上下柜子,炉灶设计 x 1
- 微波炉 x 1
- 电磁炉 x 2
- 空调
- 大理石地盘设计 (客厅,卫生间)
- 木板地板设计 (卧室)
精装修配套价值:
户型A :10万马币
? 一房价格购买两个卧室
? 高楼层,景观房
? 功能性强,性价比高
特惠户型2卧室全景玻璃屋,特别享有12% 折扣 (5+3+4%),预定即可赠送每年 5% 回报率 x 3年包租服务,赠送全屋室内家具, 拎包入住!
特惠销售配套
特惠12% 折扣 (5+3+4%)
1. 买卖合同(SPA) 印花税
2. SPA律师费 与 律师杂费
3. 贷款合同
4. 贷款合约律师费, 印花税与律师杂费
5. 外国人买房准证
6. 车位
促销至:2017年12月31日
【易马海外置业 Asiatic Capital 】
马来西亚置业首选
审核最优质的开发商
挑选最优质的楼盘
安排国内外看房团
协助考察国际学校
保障售前中后无忧
易马海外置业是在马来西亚开设的实地经营公司,拥有本土马来西亚华人所打造的精英团队,协助办理马来西亚第二家园申请服务,处理马来西亚购房、贷款等法律咨询服务及手续办理。
专业化服务我们的团队成员是由拥有多年马来西亚房产投资置业服务经验的精英人士组成,我们拥有一支熟知马来西亚的移民、法律、教育、医疗等体系的顾问队伍,并有贴心客服团队为您提供最专业的房屋买卖、贷款办理、移民留学等咨询服务。
多样化服务我们为位于中国及其他国家的您在马来西亚投资住宅,商业,办公楼,酒店等物业提供买卖咨询、租赁管理、贷款办理、移民留学、马来西亚第二家园办理等多样服务,让您安居马来西亚。
一站式服务我们为您提供在国内选房——登陆马来西亚实地看房——现场签约首付——通知分期缴款——出租管理等一站式服务,在看房期间为您安排接送航班、带看学校、解答合同、国外开户、出行规划,使您购房无忧。
马来西亚公司地址:Level 45 Naza Tower ,Platinium Park No:10, Persiaran KLCC, Kuala Lumpur City Centre, 50088 Kuala Lumpur, Federal Territory of Kuala Lumpur
- 一只酸奶牛加盟怎么样?品牌知名度大【投资费用少】
- 房产证改革方案,今后有它房子才归你!
- 哪种投资工具最适合你?千万别选错
- 太多资本烧钱焦虑赌风口,这位80后女投资人则低调赚大钱
- 易凯王冉惊爆:有FA为抢项目开始行贿,不靠谱的投资机构评选越来
- 12月15日台州房产交易数据.
- 【2017.12.15更新】房产出售、出租、求购、置换
- 资深房产律师:这种 捡漏房 买了就被坑
- 2017年12月16日周六 三分钟房产资讯早餐(语音+文字版)
- 安徽国之梦房产有限公司
